Rif: 0997
NARDO'
LECCE
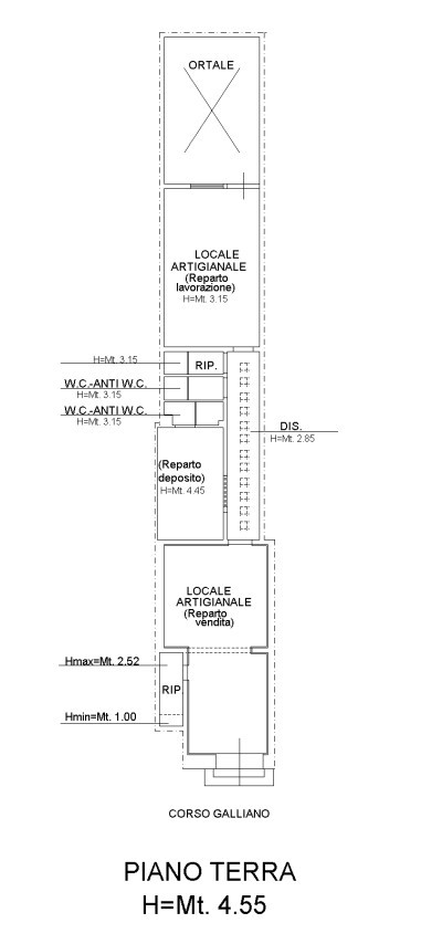
PREZZO TRATTABILE!!! In zona centralissima, in Corso Galliano, locale commerciale di ampia metratura. L'immobile, che ha una superficie di 110 mq è al momento composto da quattro vani, disimpegno, due bagni e due piccoli ripostigli. Nella parte retrostante spazio esterno di 26 mq. Tre vani con volta a stella. Ideale per investimento.
Consistenze
| Descrizione | Superficie | Sup. comm. |
|---|---|---|
| Principali | ||
| Negozio - piano rialzato | 110 Mq | 110 Mqc |
| Altro - piano rialzato | 26 Mq | 13 Mqc |
| Totale | 123 Mqc | |
